Home - All properties - Apartment - Povljana - MODERN NEW BUILD 300, FROM THE SEA – POVLJANA, PAG
MODERN NEW BUILD 300, FROM THE SEA – POVLJANA, PAG
MODERN NEW BUILD 300, FROM THE SEA – POVLJANA, PAG
MODERN NEW BUILD 300, FROM THE SEA – POVLJANA, PAG

MODERN NEW BUILD 300, FROM THE SEA – POVLJANA, PAG

Povljana | 77.09 m² | 259 370 €
PROPERTY DESCRIPTION
BASIC INFORMATION

Modern New Development in Povljana – 300 m from the Sea

In a quiet part of Povljana, just 300 meters from the sea and the beach, a modern residential building with a total of 10 apartments is under construction. The property is designed according to contemporary building standards and represents an ideal opportunity for year-round living, holidays, or investment for tourist rental.

 

Key Advantages:

  • 300 m from the sea
  • Parking space included in the price
  • Underfloor heating throughout the apartment
  • Air conditioning in every room
  • High-quality and modern construction

The building consists of a ground floor, first floor, and second floor. The apartments on the second floor are designed as duplex units with a gallery. Each apartment includes its own private parking space.

 

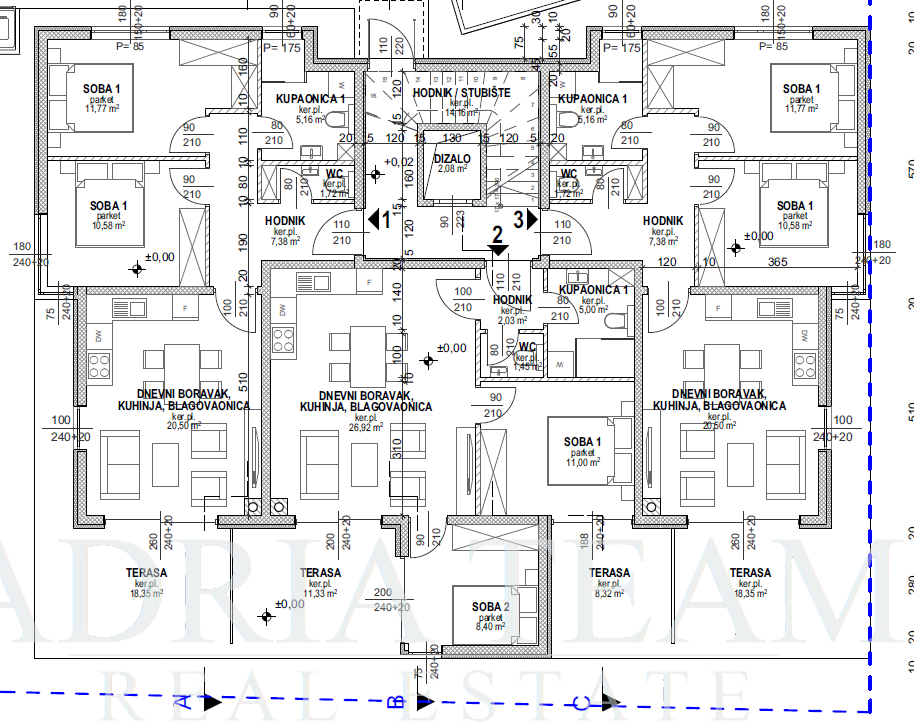
GROUND FLOOR

Apartment 1 – left

SOLD

 

Apartment 2 – middle

Total area: 84.45 m²

Layout:

  • Entrance hall – 2.03 m²
  • Living room with kitchen and dining area – 26.92 m²
  • Bedroom – 11.00 m²
  • Bedroom – 8.40 m²
  • Bathroom – 5.00 m²
  • WC – 1.45 m²
  • Terrace – 11.33 m²
  • Terrace – 8.32 m²

Total price: EUR 276,112

 

Apartment 3 – right

Total area: 81.46 m²

Layout:

  • Entrance hall – 7.38 m²
  • Living room with kitchen and dining area – 20.50 m²
  • Bedroom – 11.77 m²
  • Bedroom – 10.58 m²
  • Bathroom – 5.16 m²
  • WC – 1.72 m²
  • Covered terrace – 18.35 m²

Total price: EUR 267,455

 

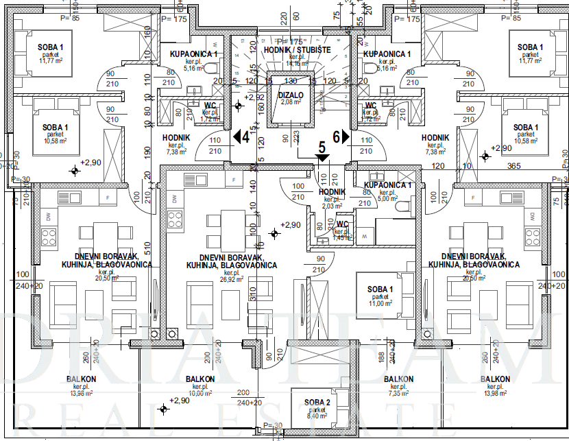
FIRST FLOOR

Apartment 4 – left

Total area: 77.09 m²

Layout:

  • Entrance hall – 7.38 m²
  • Living room with kitchen and dining area – 20.50 m²
  • Bedroom – 11.77 m²
  • Bedroom – 10.58 m²
  • Bathroom – 5.16 m²
  • WC – 1.72 m²
  • Balcony – 13.98 m²

Total price: EUR 259,370

 

Apartment 5 – middle

Total area: 82.15 m²

Layout:

  • Entrance hall – 2.03 m²
  • Living room with kitchen and dining area – 26.92 m²
  • Bedroom – 11.00 m²
  • Bedroom – 8.40 m²
  • Bathroom – 5.00 m²
  • WC – 1.45 m²
  • Balcony – 10.00 m²
  • Balcony – 7.35 m²

Total price: EUR 271,858

 

Apartment 6 – right

Total area: 77.09 m²

Layout:

  • Entrance hall – 7.38 m²
  • Living room with kitchen and dining area – 20.50 m²
  • Bedroom – 11.77 m²
  • Bedroom – 10.58 m²
  • Bathroom – 5.16 m²
  • WC – 1.72 m²
  • Balcony – 13.98 m²

Total price: EUR 259,370

 

SECOND FLOOR – Duplex Apartments with Gallery

Spacious and attractive duplex apartments offer additional comfort and functionality thanks to the gallery space.

 

Apartment 7 – left

Total area: 149.16 m²

Lower level:

  • Living room and dining area – 40.74 m²
  • Kitchen – 3.92 m²
  • Bedroom – 12.13 m²
  • Bedroom – 10.78 m²
  • Bathroom – 3.33 m²
  • Bathroom – 3.22 m²
  • Hallway and staircase
  • Balcony – 13.98 m²

Gallery level:

  • Open-plan living area – 37.64 m²
  • Bedroom – 11.32 m²
  • Bathroom – 5.60 m²
  • Hallway – 6.50 m²

Total price: EUR 526,029

 

Apartment 8 – middle

Total area: 145.18 m²

(Balcony – 10.00 m²)

Total price: EUR 518,666

 

Apartment 9 – middle

Total area: 142.53 m²

(Balcony – 7.35 m²)

Total price: EUR 513,764

 

Apartment 10 – right

Total area: 149.16 m²

(Balcony – 13.98 m²)

Total price: EUR 526,029

For more information or to arrange a viewing, please feel free to contact us. We will be happy to provide you with all the necessary details.

OVERVIEW
BASIC INFORMATION
Property code
26-031N
Sale price
259 370 €
Location
Povljana (23249)
Area
77.09 m²
GALLERY

CUSTOMER REVIEWS ON GOOGLE

4.9 out of 5 based on 57 reviews

Roman Moravec

I have already bought 2 properties in Croatia through ADRIA TEAM in the past 6 years. The owner has an overview of the market, prices, investments, locations and positions of properties...she can advise if it is a good deal. If you are looking for something in the Zadar area, be sure to give them a call.

Zarko Stekovic

Real professionals in their business and awesome people. Contact them with confidence.

Jana Hindakova

Professional, pleasant and willing team communicating in all world languages ​​with legal and legislative services. They offer only quality real estate. No surprises await you. Highly recommended.

Ljiljana Susnik

The Adria Team immediately understood our wishes and guided us reliably and accurately through all the property purchase procedures. We recommend!

Martin Jedlička

Excellent service, excellent approach, beautiful enchantress will make your dream of a house in Croatia come true

Zuzana Uškertová

I can only recommend, I am extremely satisfied with the approach. A pleasure to work with. 😉

Ljubica Bolić

Expert, professional, fast. For every recommendation!

Tanja K

Very professional

Countess Stekovic

Adria Team helped my husband and I throughout the whole process. They are so helpful and easy to work with.

bojnicke suveniry

GREAT!!! They helped, during the purchase, and even after... We are still in touch... :-)

Taxi Vir

Excellent for any recommendation.

andrea milin

A pleasant experience thanks to the professional and approachable staff :)

Petra Bilek

Full confidence - in any case, contact them with confidence!

Ana Sunara

Great atmosphere with a great professional approach, I definitely recommend it!

cupo cupic

Professional and kind, every recommendation!

Tin Bušić

Very kind and professional. Recommended!

Marko Stijepovic

The best, my wedding would be the same without you guys!!!

Miroslava Šoltýsová

quality services, willingness, helpfulness and advice in favor of the client...super, I recommend, satisfaction👍...

Luka Sunara

Committed to your work - approach them with confidence.

NEKRETNINE AUXILIUM

Professional attitude towards clients, which I can confirm firsthand.

Ivan Sunara

Very satisfied with the services provided!

Tomislav Azinovic

I see that they are writing positive comments to themselves, but this is an agency to avoid, while I called them to view the property...

CONTACT
OUR BROKER

Your message has been successfully sent

Your message could not be sent. Please try again.

All fields are required

OTHER PROPERTIES
FROM Povljana
APARTMENT – 1ST FLOOR – FIRST LINE TO THE SEA – SEA VIEW - POVLJANA, PAG property for sale

APARTMENT – 1ST FLOOR – FIRST LINE TO THE SEA – SEA VIEW - POVLJANA, PAG

Povljana 43.21 m² 220 000 €
1-BEDROOM + LIVING ROOM, PARKING + NEW BUILD – POVLJANA, PAG property for sale

1-BEDROOM + LIVING ROOM, PARKING + NEW BUILD – POVLJANA, PAG

Povljana 46.01 m² 276 060 €
DUPLEX 2B+LR + GALLERY – NEW BUILD – POVLJANA, PAG property for sale

DUPLEX 2B+LR + GALLERY – NEW BUILD – POVLJANA, PAG

Povljana 74.88 m² 434 304 €
ATTRACTIVE NEW BUILD – SPACIOUS 2-BEDROOM APARTMENT WITH LARGE TERRACE AND PRIVATE GARDEN – POVLJANA, PAG property for sale

ATTRACTIVE NEW BUILD – SPACIOUS 2-BEDROOM APARTMENT WITH LARGE TERRACE AND PRIVATE GARDEN – POVLJANA, PAG

Povljana 179 m² 320 000 €
APARTMENT S10 WITH ELEVATOR, NEW BUILDING - POVLJANA, PAG property for sale

APARTMENT S10 WITH ELEVATOR, NEW BUILDING - POVLJANA, PAG

Povljana 114.33 m² 428 750 €
APARTMENT S4 WITH ELEVATOR, NEW BUILDING - POVLJANA, PAG property for sale

APARTMENT S4 WITH ELEVATOR, NEW BUILDING - POVLJANA, PAG

Povljana 73.04 m² 255 000 €
1-BEDROOM + LIVING ROOM WITH BALCONY + IDEAL FOR RENTAL – POVLJANA, PAG property for sale

1-BEDROOM + LIVING ROOM WITH BALCONY + IDEAL FOR RENTAL – POVLJANA, PAG

Povljana 45.09 m² 270 540 €
APARTMENT WITH SWIMMING POOL, NEW BUILD - POVLJANA, ISLAND OF PAG property for sale

APARTMENT WITH SWIMMING POOL, NEW BUILD - POVLJANA, ISLAND OF PAG

Povljana 161 m² 285 000 €
TWO-STORY APARTMENT WITH GARDEN - POVLJANA, PAG property for sale

TWO-STORY APARTMENT WITH GARDEN - POVLJANA, PAG

Povljana 107.42 m² 343 744 €
APARTMENT WITH GARDEN – NEW BUILD – POVLJANA, ISLAND OF PAG property for sale

APARTMENT WITH GARDEN – NEW BUILD – POVLJANA, ISLAND OF PAG

Povljana 84.44 m² 270 208 €
APARTMENT FIRST ROW BY THE SEA, OPEN SEA VIEW – POVLJANA, PAG property for sale

APARTMENT FIRST ROW BY THE SEA, OPEN SEA VIEW – POVLJANA, PAG

Povljana 74.15 m² 370 000 €
PREMIUM NEW BUILD – DUPLEX APARTMENT WITH TWO TERRACES – POVLJANA, PAG property for sale

PREMIUM NEW BUILD – DUPLEX APARTMENT WITH TWO TERRACES – POVLJANA, PAG

Povljana 122 m² 345 000 €
APARTMENT IN NEW BUILD – 60m FROM THE SEA – POVLJANA, PAG property for sale

APARTMENT IN NEW BUILD – 60m FROM THE SEA – POVLJANA, PAG

Povljana 94.41 m² 424 800 €
APARTMENT S3 WITH ELEVATOR, NEW BUILDING - POVLJANA, PAG property for sale

APARTMENT S3 WITH ELEVATOR, NEW BUILDING - POVLJANA, PAG

Povljana 82.79 m² 320 000 €
MODERN TWO-BEDROOM APARTMENT WITH ELEVATOR, 60 m FROM THE SEA – POVLJANA, PAG property for sale

MODERN TWO-BEDROOM APARTMENT WITH ELEVATOR, 60 m FROM THE SEA – POVLJANA, PAG

Povljana 84.03 m² 378 135 €
APARTMENT  WITH COVERED BALCONY – NEW BUILD – POVLJANA, ISLAND OF PAG property for sale

APARTMENT WITH COVERED BALCONY – NEW BUILD – POVLJANA, ISLAND OF PAG

Povljana 79.11 m² 253 152 €
1B+LR + BALCONY – NEW BUILD – POVLJANA, PAG property for sale

1B+LR + BALCONY – NEW BUILD – POVLJANA, PAG

Povljana 46.01 m² 276 060 €
APARTMENT ON THE 1ST FLOOR – POVLJANA, PAG property for sale

APARTMENT ON THE 1ST FLOOR – POVLJANA, PAG

Povljana 66.84 m² 233 940 €
CONTACT US TODAY
Your message has been successfully sent
Your message could not be sent. Please try again.

All fields are required

+385 95 3686 947